2023 - Boadilla del Monte
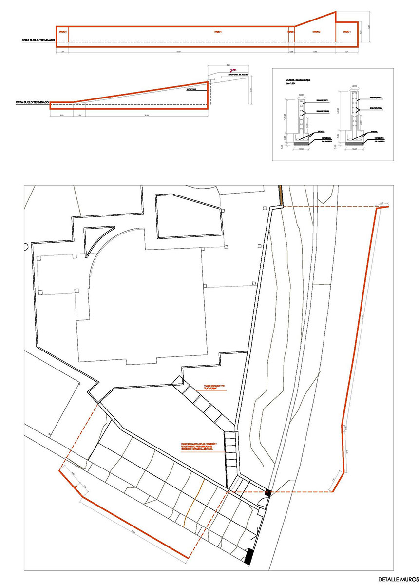
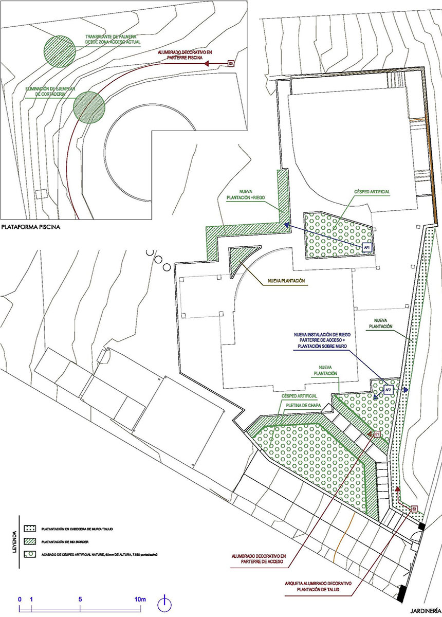
Playa y pendiente
2023 - Boadilla del Monte

  • INICIO
  • UNIFAMILIARES
  • RESIDENCIAL
  • GRANDES PROYECTOS
  • TERRAZAS
  • INSTALACIONES
  • CONCURSOS Y EXPOSICIONES
  • TERRITORIO
  • ARQUITECTURA E INTERIORISMO
  • EQUIPO
  • CONTACTO

Cynara es un equipo formado por Arquitectas y Paisajistas que aúna la experiencia de una reconocida saga familiar del mundo del paisaje, con la frescura de las nuevas corrientes del diseño.

En constante formación y progreso, con capacidad para afrontar proyectos de Arquitectura, Interiorismo y Paisajismo, Cynara abarca cualquier escala, desde zonas verdes, de carácter doméstico o urbano, a estudios a nivel territorial.

 
  • En el pantano
  • En la costa tropical
  • En el monte de los almendros
  • En compañía del agua
  • En la Isla
  • En dos alturas
  • En poco espacio
  • En pendiente
  • En la ribera de un rio
  • En el sotobosque
  • Dos ambientes
  • Pelagartal
  • Transición a la dehesa
  • Homenaje a Forestier
  • Actualizando el patio manchego
  • Jardín en la sierra
  • Mucho más que un jardín
  • Bajo del mar
  • Playa y pendiente
  • Paraíso compartido
  • Curva y contracurva
  • Curva frente a recta
  • Modernismo contemporáneo
  • Centro de astrobiologia
  • Hotel Casino "El reino de Don Quijote"
  • Hotel residence bereber "Hammamet"
  • Jardín Botánico en Ambite
  • Jardín de simples
  • Bosque forestal Glaxo
  • Colegio con corazón
  • Plaza de España
  • Plaza de Tirso de Molina
  • Avenida de La Gavia
  • Balcones de Madrid
  • Plaza de Las Tizas
  • Poblado dirigido de Orcasitas
  • Parque Meseta de Orcasitas
  • Capitán Haya
  • Parque de Los Pinos
  • Monotemáticos Parque Juan Carlos I
  • Propuestas de mejora en la ciudad de Melilla
  • Parque Arroyo Vallejo en Azuqueca de Henares
  • Parque Martin Luther King
  • Parque El Plantío en Coslada
  • Grandes vistas
  • Cuatro estaciones
  • Pequeño oasis
  • Exteriorismo
  • Blanco y verde
  • Vergel en Lavapiés
  • Con vistas al Retiro
  • Comedor verde
  • Pradera perfecta
  • Esencia oriental
  • Primavera en el interior
  • Pabellón español Osaka
  • Jardín español Japón
  • Enaguas
  • Cynara alquemia
  • Lac Retba
  • Ecocubo
  • Civitas
  • Souvenir
  • Abundancia o exceso
  • Fluir
  • Cosiendo espacios
  • Identidad
  • Bosque
  • Paisajes habitados
  • Medio perceptual
  • Ordenación del territorio
  • Ecología del paisaje, comparativa entre dos municipios
  • Ecología del Paisaje, análisis de la Dinámica del Paisaje
  • Restauración paisajística, carretera circunvalación
  • Restauración paisajística, AVE
  • Inventario y valoración de arbolado
  • Tres ambientes en uno
  • Barroco renovado
  • San Nazario
  • Homenaje a un edificio
  • En el casco histórico
  • Enmarcando el jardín
  • Escalecultura
  • Los Olmos
  • Espacios compartidos
  • Mundo motor
  • En femenino
  • Coloreando
  • Viñas viejas
  • Vivienda en Prosperidad
  • Lisboa inspira
  • En el 132
  • Trasteando
  • La gran familia
  • Muro con historia
  • Nueva vida en Madrid
  • Estantería Mondrian
  • Blanco y Negro
  • Dos baños y un destino
  • Cocina vecina
  • Dos hermanos
  • Dos locales en Madrid
  • El baño de Loli
  • Mucho más que un jardín
  • Dos + dos
  • Vida en la cocina
  • Piso de soltero
  • Una + una
  • 100% Deco
  • Cynara home
  • Refugio en la ciudad
  • La familia crece
  • La madriguera
  • Alquilar en Pacífico
  • Office en Madrid
  • Alquiler para dos
  • Alquiler con vistas
  • Esencia circular
  • Vuelta a casa
  • Segunda fase
  • Escenografía en obras
  • Confort y estilo
  • Reto geométrico
  • Espacio para todos
  • La Bombonera
  • Vivir en la sierra
  • Apartamento en el centro
  • Tras el office, la casa
  • Machupichu
  • Cocina P
  • Cocina N
  • Cocina L+P
  • Traje a medida
  • Corte y confección
  • Vistas al parque
  • Nidito madrileño
  • Nueva etapa
  • Cocina M+4
  • Ana Victoria Spalla Poveda
  • Marta Gallego Gómez
  • María Agudo Saceda
 
Calle Loeches 6,
28008, Madrid, España
 
T 646 80 88 33 // 636 12 07 35
   686 93 80 00

info@cynaraarquitecturaypaisaje.com


Diseño web:  poliedrico.es